Kazánok /  Gázkazánok /  Kondenzációs /  Fűtő kazánok /  Immergas VICTRIX Pro V2 35
Immergas VICTRIX Pro V2 35
5 év teljes körű garancia
"EASY CASCADE" többkazános üzemmód
Beépített időjárásfüggő szabályozás
Szélesebb modulációs tartomány 10-100%
Névleges Fűtési teljesítmény 35,0 kW
"A" kat. 94% szezonális hatásfok
Rozsdamentes acél hőcserélő
Cikkszám: 3.034431
* az árak bruttó árak! (az ÁFA-t tartalmazzák)
Az Immergas Victrix Pro V2 35 fali kondenzációs fűtő gázkazán nagy teljesítményű, falra szerelhető készülék, amely indirekt tároló csatlakoztatásával használati melegvíz előállítására is alkalmas. Magas hőteljesítménye és kaszkádba köthetősége miatt ideális választás társasházak vagy ipari épületek fűtésére.
A digitális kaszkád- és zónavezérlő integrált távfelügyelettel, valamint bővítőegységgel akár 5 fűtési kör (1 direkt és legfeljebb 4 keverőszelepes kör) kiépítését teszi lehetővé, továbbá egy indirekt HMV-tároló vezérlését is. Egy kaszkád szabályozó akár 8 VICTRIX Pro V2 kazánt is képes vezérelni folyamatos teljesítményszabályozással, és akár 3 szabályozó is összekapcsolható, így maximum 15 fűtési kör és 3 HMV-tároló irányítható.
A készülék rozsdamentes acél hőcserélővel rendelkezik, teljesítménye pedig a pillanatnyi igényekhez igazodva 10–100% között modulálható. Az elektronikus lángszabályozás biztosítja a hatékony energiamegtakarítást és a folyamatos komfortot, miközben pontosan szabályozza a fűtővíz és a használati melegvíz hőmérsékletét.
Az alapfelszereltség része az indirekt HMV-tároló vezérlése, a csatlakoztatáshoz opcionálisan motoros váltószelep készlet szükséges. A magyar nyelvű digitális kezelőfelület egyszerű és felhasználóbarát, a kijelző ikonokkal és kódokkal ad visszajelzést az aktuális működésről és az esetleges hibákról.
Az időjárásfüggő szabályozás a külső hőmérséklethez igazítja a fűtővíz hőmérsékletét, így növeli az energiahatékonyságot és a kényelmet. A kondenzációs technológia a füstgázban lévő vízgőz hőtartalmát is hasznosítja, ezáltal alacsonyabb gázfogyasztással érhető el azonos fűtőteljesítmény, ami környezetkímélőbb üzemeltetést eredményez.
A készülék elektronikája kompatibilis 0–10V, Opentherm és Modbus kommunikációval. Kaszkádba kötve akár 15 készülék is vezérelhető külön szabályozó nélkül, ilyenkor a rendszer képes 1 direkt kört, 1 kevert kört és 1 HMV-kört kezelni.
Magas páratartalmú vagy fröccsenő vizes környezetben is biztonságosan üzemel, IPX5D védettséggel.
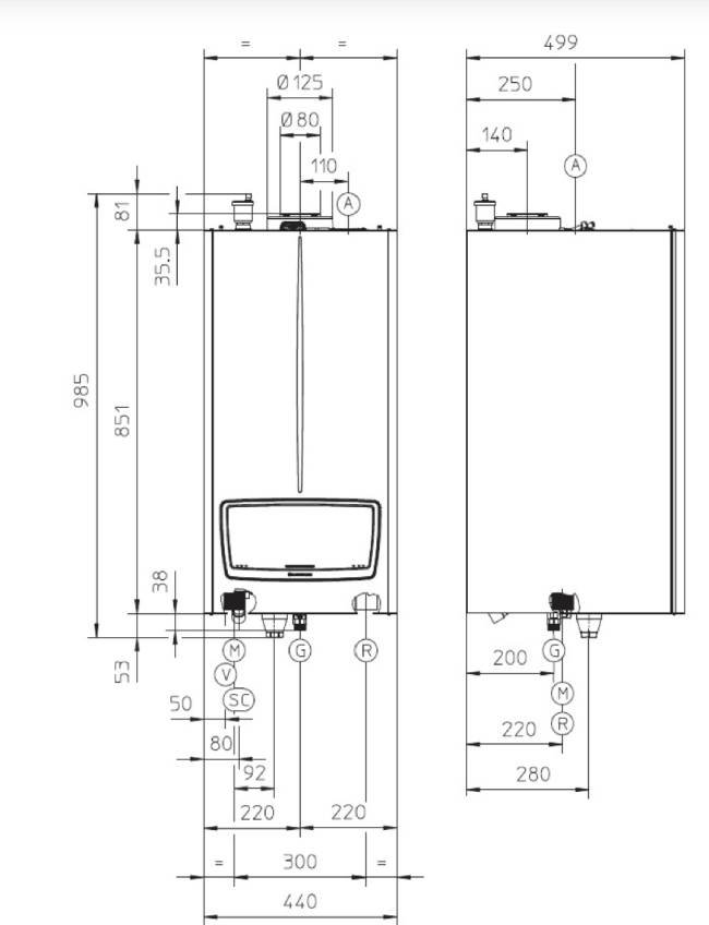
Műszaki adatok:
Névleges hőterhelés: 34,9 kW
Minimális hőterhelés: 3,9 kW
Névleges (hasznos) hőteljesítmény: 33,9 kW
Minimális (hasznos) hőteljesítmény: 3,7 kW
Hatásfok (80/60 °C): 97,0 / 94,0 %
Hatásfok (50/30 °C): 105,8 / 105,7 %
Hatásfok (40/30 °C): 107,7 / 107,2 %
Fűtési előremenő hőmérséklet: 15–90 °C
Maximális kazánvíz hőmérséklet: 95 °C
Maximális nyomás: 4,4 bar
Szezonális hatásfok (ErP): 94 %
Elektromos teljesítmény: 130 W
Ventilátor teljesítmény: 45 W
Keringető szivattyú: 77,8 W
Elektromos védettség: IPX5D
Füstgáz elvezetés / levegő bevezetés: Ø 80 / 125 mm
Tömeg víz nélkül: 50 kg
Tömeg vízzel töltve: 52,4 kg
Földgáz csatlakozási nyomás: 20 mbar
Földgázfogyasztás (min/max): 0,41 / 3,69 m³/h
|
|






















.png)







.png)




